ответят наши менеджеры
Заказная черная футеровка для некоторых каминных топок Spartherm серии Prestige, Linear и Premium. Шамотная смесь имеет в своем составе графит. Современный вид и улучшенные характеристики.
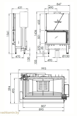
Со своим неограниченным обозрением огня и небольшой монтажной глубиной каминная топка Premium V-2L-80h вносит яркие нотки в дизайн интерьера. В результате создается приятная для глаз каминная композиция, отличающаяся изящностью форм и компактностью конструкции. Она идеально подходит для помещений с ограниченным пространством для камина, в которых камины традиционного типа занимают слишком много места, а также для помещений, где установка камина ранее была невозможна из-за материала стен. В качестве опции можно заказать дополнительную изоляционную стенку для топки. Тщательно продуманная технология камина позволяет размещать его даже непосредственно перед стеной из горючих материалов. Монолитное цельное стекло из устойчивой к деформации стеклокерамики дает возможность бесконечно любоваться красотой играющего пламени. Стекло легко поднимается вверх или опускается вниз, тем самым максимально упрощая процедуру очистки. При желании можно управлять подъемным механизмом двери при помощи дистанционного пульта. Отсутствие нижней рамки на двери стирает границу между дверцей и топочной камерой.
Строгий дизайн с непревзойденной элегантностью.
Каминные топки Spartherm Premium превращаются в ключевой элемент любой обстановки или концепции интерьера, привлекая всеобщее внимание и вместе с тем обеспечивая массу преимуществ.
Свобода от кромок, швов и перепадов поверхности – новинка мирового масштаба.
Именно с помощью технических инноваций в области архитектуры каминного остекления лидеру немецкого рынка компании Spartherm удается сделать из обычного камина впечатляющее огненное шоу.
Четкий обзор.
Цельные стеклянные панели из устойчивой к деформации из стеклокерамики дают возможность бесконечно любоваться красотой играющего пламени. Стеклокерамическая панель легко отодвигается вверх или опускается вниз, тем самым максимально упрощая процедуру очистки.
Эффективность.
Благодаря прогрессивной технологии сжигания каминные топки Spartherm Premium обладают высокой производительностью с оптимальным энергопотреблением.
Топки серии Premium от рассчитаны на длительное пользование, безопасное для Вас и окружающей среды.
|
Высота стекла, мм
|
501 |
|
Высота
|
1561 |
|
Ширина
|
995 |
|
Глубина
|
592 |
|
Ширина, мм
|
901-1000 |
|
Конструкция
|
Два стекла с подъемом вверх |
|
Диаметр дымохода
|
250 мм |
|
Открытие дверцы
|
В сторону, вверх |
|
Подвод воздуха извне
|
Есть |
|
Гарантия, лет (год)
|
5 |
|
Страна производства
|
Германия |
|
Материал корпуса
|
Сталь |
|
Материал топки
|
Сталь, шамот |
|
Мощность, кВт
|
11 |
|
КПД, %
|
80 |
|
Зольный ящик
|
есть |
|
Вторичный дожиг
|
Есть |
|
Чистое стекло
|
Есть |
|
Ширина стекла, мм
|
806+406 |
|
Наличие
|
Под заказ |
Бесплатный выезд на замер
- Лучше один раз увидеть, чем строить на словах.
- Мы сразу считаем точные сметы по реальным размерам
- Выберем лучшее место для установки камина
- Это действительно — бесплатно, если вы до 50 км от МКАД.
- Консультируем по безопасной установке камина, печи, дымохода.
Как оформить заказ
Оформить заказ на нашем сайте легко. Просто добавьте выбранные товары в корзину, а затем перейдите на страницу Корзина, проверьте правильность заказанных позиций и нажмите кнопку «Оформить заказ» или «Быстрый заказ».
Быстрый заказ
Функция «Быстрый заказ» позволяет покупателю не проходить всю процедуру оформления заказа самостоятельно. Вы заполняете форму, и через короткое время вам перезвонит менеджер магазина. Он уточнит все условия заказа, ответит на вопросы, касающиеся качества товара, его особенностей. А также подскажет о вариантах оплаты и доставки.
По результатам звонка, пользователь либо, получив уточнения, самостоятельно оформляет заказ, укомплектовав его необходимыми позициями, либо соглашается на оформление в том виде, в котором есть сейчас. Получает подтверждение на почту или на мобильный телефон и ждёт доставки.
Оформление заказа в стандартном режиме
Если вы уверены в выборе, то можете самостоятельно оформить заказ, заполнив по этапам всю форму.
Заполнение адреса
Выберите из списка название вашего региона и населённого пункта. Если вы не нашли свой населённый пункт в списке, выберите значение «Другое местоположение» и впишите название своего населённого пункта в графу «Город». Введите правильный индекс.
Доставка
В зависимости от места жительства вам предложат варианты доставки. Выберите любой удобный способ. Подробнее об условиях доставки читайте в разделе «Доставка».
Оплата
Выберите оптимальный способ оплаты. Подробнее о всех вариантах читайте в разделе «Оплата»
Покупатель
Введите данные о себе: ФИО, адрес доставки, номер телефона. В поле «Комментарии к заказу» введите сведения, которые могут пригодиться курьеру, например: подъезды в доме считаются справа налево.
Оформление заказа
Проверьте правильность ввода информации: позиции заказа, выбор местоположения, данные о покупателе. Нажмите кнопку «Оформить заказ».
Наш сервис запоминает данные о пользователе, информацию о заказе и в следующий раз предложит вам повторить к вводу данные предыдущего заказа. Если условия вам не подходят, выбирайте другие варианты.
Оплачивайте покупки удобным способом. В интернет-магазине доступно 3 варианта оплаты:
- Наличные при самовывозе или доставке курьером. Специалист свяжется с вами в день доставки, чтобы уточнить время и заранее подготовить сдачу с любой купюры. Вы подписываете товаросопроводительные документы, вносите денежные средства, получаете товар и чек.
- Безналичный расчет при самовывозе или оформлении в интернет-магазине: карты Visa и MasterCard. Чтобы оплатить покупку, система перенаправит вас на сервер системы ASSIST. Здесь нужно ввести номер карты, срок действия и имя держателя.
- Электронные системы при онлайн-заказе: PayPal, WebMoney и Яндекс.Деньги. Для совершения покупки система перенаправит вас на страницу платежного сервиса. Здесь необходимо заполнить форму по инструкции.
Наш магазин предлагает несколько вариантов доставки:
- курьерская;
- самовывоз из магазина;
- Европочта до пунктов выдачи посылок.
Курьерская доставка*
Вы можете заказать доставку товара с помощью курьера, который прибудет по указанному адресу в будние дни с 9.00 до 19.00. Курьерская служба, после поступления товара на склад, свяжется с вами и предложит выбрать удобное время доставки. Уточнит адрес.
Вы вскрываете упаковку при курьере, осматриваете на целостность и соответствие указанной комплектации. . Время осмотра и разгрузки ограничено 15 минутами. После вы можете отказаться частично или полностью от покупки.
Доставка бесплатна при заказе от 500 рублей.
Разгрузка осуществляется силами заказчика! Если нет возможности разгрузить товар можем за доп. плату предоставить грузчиков!
*Действует ли в вашем городе курьерская служба, уточняйте у менеджера магазина.
Самовывоз из магазина
Вы можете забрать товар в магазине. Забрать покупку может ваш друг или родственник, который знает номер и имя, на кого он оформлен.
Почтовая доставка
Если у вас небольшой по объему и весу товар можно заказать его через ЕВРОПОЧТУ.
Доставка до пункта выдачи, как правило, не превышает 4-7 рублей.
Срок доставки
В зависимости от вашего региона проживания, доставка занимает разное время.
|
Регион |
Курьерская доставка |
Самовывоз из магазина |
|
Европоста |
|
Минск и Минский район |
1-2 рабочих дней |
до 5 дней |
||
|
Районные и областные города |
2-4 рабочих дня |
1-4 рабочих дня |
|
до 5 дней |
|
|
|
|
|
|
О доставке в страны СНГ уточняйте менеджеров магазина.
Кредит и рассрочка
Данное предложение действует для брендов: THORMA, KOBOK, CARBEL, PANADERO
В нашем магазине вы можете купить товар с помощью РРБ-Банка
12/24 (12 месяцев рассрочка, вторые 12 месяцев кредит)
- Рассрочка - на 12 месяцев под 0,001% годовых.
- Кредит - на 12 месяцев под 18,18% годовых
Подробные условия находятся по ссылке.
Карты рассрочки
Приобрести любой товар в нашем магазине можно следующими картами рассрочки:
- Карта покупок;
- Магнит;
- Smart;
- Карта Fun.
За получением развернутой информации обращайтесь в наш магазин!

