ответят наши менеджеры
Каминная топка Austroflamm cерия K 2.0
Каминные топки Austroflamm серии K 2.0 идеальные выбор для создания камина в различных стилях и желанием получить совершенный прибор с использованием самых современных технологий горения.. Каминные топки Austroflamm K 2,0 разработаны в этой версии с прямым стеклом, что дает вам панорамный вид на спокойное и очень красивое сгорание благодаря технологиям присущим подовым топкам, которая облицована изнутри Keramott. Этот материал обладает особыми свойствами с точки зрения теплоизоляции, а также теплопроводности. Таким образом, Austroflamm позволяет быстрее достигать высоких температур в камере сгорания при розжиге и поддерживать оптимальную температуру для чистоты сгорания постоянно на любых режимах в процессе горения огня. . Это не только заставит вас чувствовать себя комфортно в своей гостиной, но и обеспечит эффективное сгорание и что особенно приятно - очень красивое горение! В этих подовых топках, благодаря оптимально высокой температуре в камере сгорания, хорошей герметичности, а также другим технологическим разработкам компании Austroflamm - очень красиво горит испускаемый при нагреве древесины газ, своеобразными легкими кудрями, медленно и спокойно.. Но, не только одними эстетическими преимуществами чистого и красивого горения отличаются эти топки, это еще и отличный эффективный обогревательный прибор с очень большим набором различных возможностей оптимизации именно под ваши нужды. Например, эти топки имеют необходимый допуск под встройку в закрытые теплоемкие облицовки, которые не имеют привычных конвекционных решеток, благодаря чему вы можете очень существенно улучшить свой комфорт.
Чтобы извлечь выгоду из улучшенного распределения тепла, Austroflamm предлагает различные модули аккумулирования тепла для этой каминной вставки . Все варианты изготовлены из специально разработанного и запатентованного материала Austroflamm, который быстро поглощает тепло, сохраняет его, а затем медленно и равномерно отдает. Также, если это необходимо, вы можете использовать эти топки, как эффективный прибор быстрого нагрева и отопления всего дома путем разводки в удаленные помещения нагретого воздуха нагнетаемого через заводской дистрибьютор (опция). А если вы желаете облицевать свой камин печным кафелем (изразцом) - то эти топки практически идеальны. Дело в том, что все форматы топок и конфигурация формы их корпусов, рассчитаны под стандартные градации в размерах облицовочного печного кафеля (европейские) что позволит вам избежать нежелательных подрезок при монтаже облицовок.
Органы управления, ручка двери и регулятор воздуха для горения стандартно выполнены из матового хрома, предназначенного для этой нагревательной вставки. В качестве альтернативы матовому хрому элементов управления, каминная вставка Austroflamm серии K 2.0 также доступна с дверной ручкой и регулятором воздуха для горения черного цвета или в сочетании с деревом. Кроме того, вы также можете выбрать подходящую решетку с соответствующим ящиком для золы, что в будущем облегчит удаление золы в каминной вставке Austroflamm серии K 2.0 .
|
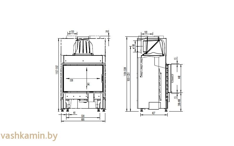
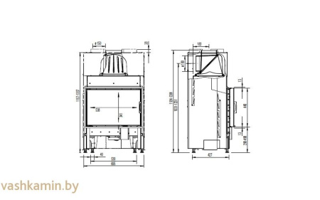
Высота стекла, мм
|
340 |
|
Высота
|
1384 |
|
Ширина
|
699 |
|
Глубина
|
543 |
|
Вес
|
103 |
|
Ширина, мм
|
400-700 |
|
Конструкция
|
Прямое стекло |
|
Объем отопления
|
151-200 м3 |
|
Площадь отопления
|
80 м2 |
|
Диаметр дымохода
|
180 мм |
|
Открытие дверцы
|
В сторону |
|
Подвод воздуха извне
|
Есть |
|
Подключение
|
Вверх, Сзади |
|
Гарантия, лет (год)
|
6 |
|
Страна производства
|
Австрия |
|
Материал корпуса
|
Сталь |
|
Материал топки
|
Керамотт |
|
Мощность, кВт
|
8 |
|
КПД, %
|
80,3 |
|
Температура газов, градусов
|
283 |
|
Вторичный дожиг
|
Есть |
|
Чистое стекло
|
Есть |
|
Ширина стекла, мм
|
537 |
|
Наличие
|
Под заказ |
Бесплатный выезд на замер
- Лучше один раз увидеть, чем строить на словах.
- Мы сразу считаем точные сметы по реальным размерам
- Выберем лучшее место для установки камина
- Это действительно — бесплатно, если вы до 50 км от МКАД.
- Консультируем по безопасной установке камина, печи, дымохода.
Как оформить заказ
Оформить заказ на нашем сайте легко. Просто добавьте выбранные товары в корзину, а затем перейдите на страницу Корзина, проверьте правильность заказанных позиций и нажмите кнопку «Оформить заказ» или «Быстрый заказ».
Быстрый заказ
Функция «Быстрый заказ» позволяет покупателю не проходить всю процедуру оформления заказа самостоятельно. Вы заполняете форму, и через короткое время вам перезвонит менеджер магазина. Он уточнит все условия заказа, ответит на вопросы, касающиеся качества товара, его особенностей. А также подскажет о вариантах оплаты и доставки.
По результатам звонка, пользователь либо, получив уточнения, самостоятельно оформляет заказ, укомплектовав его необходимыми позициями, либо соглашается на оформление в том виде, в котором есть сейчас. Получает подтверждение на почту или на мобильный телефон и ждёт доставки.
Оформление заказа в стандартном режиме
Если вы уверены в выборе, то можете самостоятельно оформить заказ, заполнив по этапам всю форму.
Заполнение адреса
Выберите из списка название вашего региона и населённого пункта. Если вы не нашли свой населённый пункт в списке, выберите значение «Другое местоположение» и впишите название своего населённого пункта в графу «Город». Введите правильный индекс.
Доставка
В зависимости от места жительства вам предложат варианты доставки. Выберите любой удобный способ. Подробнее об условиях доставки читайте в разделе «Доставка».
Оплата
Выберите оптимальный способ оплаты. Подробнее о всех вариантах читайте в разделе «Оплата»
Покупатель
Введите данные о себе: ФИО, адрес доставки, номер телефона. В поле «Комментарии к заказу» введите сведения, которые могут пригодиться курьеру, например: подъезды в доме считаются справа налево.
Оформление заказа
Проверьте правильность ввода информации: позиции заказа, выбор местоположения, данные о покупателе. Нажмите кнопку «Оформить заказ».
Наш сервис запоминает данные о пользователе, информацию о заказе и в следующий раз предложит вам повторить к вводу данные предыдущего заказа. Если условия вам не подходят, выбирайте другие варианты.
Оплачивайте покупки удобным способом. В интернет-магазине доступно 3 варианта оплаты:
- Наличные при самовывозе или доставке курьером. Специалист свяжется с вами в день доставки, чтобы уточнить время и заранее подготовить сдачу с любой купюры. Вы подписываете товаросопроводительные документы, вносите денежные средства, получаете товар и чек.
- Безналичный расчет при самовывозе или оформлении в интернет-магазине: карты Visa и MasterCard. Чтобы оплатить покупку, система перенаправит вас на сервер системы ASSIST. Здесь нужно ввести номер карты, срок действия и имя держателя.
- Электронные системы при онлайн-заказе: PayPal, WebMoney и Яндекс.Деньги. Для совершения покупки система перенаправит вас на страницу платежного сервиса. Здесь необходимо заполнить форму по инструкции.
Наш магазин предлагает несколько вариантов доставки:
- курьерская;
- самовывоз из магазина;
- Европочта до пунктов выдачи посылок.
Курьерская доставка*
Вы можете заказать доставку товара с помощью курьера, который прибудет по указанному адресу в будние дни с 9.00 до 19.00. Курьерская служба, после поступления товара на склад, свяжется с вами и предложит выбрать удобное время доставки. Уточнит адрес.
Вы вскрываете упаковку при курьере, осматриваете на целостность и соответствие указанной комплектации. . Время осмотра и разгрузки ограничено 15 минутами. После вы можете отказаться частично или полностью от покупки.
Доставка бесплатна при заказе от 500 рублей.
Разгрузка осуществляется силами заказчика! Если нет возможности разгрузить товар можем за доп. плату предоставить грузчиков!
*Действует ли в вашем городе курьерская служба, уточняйте у менеджера магазина.
Самовывоз из магазина
Вы можете забрать товар в магазине. Забрать покупку может ваш друг или родственник, который знает номер и имя, на кого он оформлен.
Почтовая доставка
Если у вас небольшой по объему и весу товар можно заказать его через ЕВРОПОЧТУ.
Доставка до пункта выдачи, как правило, не превышает 4-7 рублей.
Срок доставки
В зависимости от вашего региона проживания, доставка занимает разное время.
|
Регион |
Курьерская доставка |
Самовывоз из магазина |
|
Европоста |
|
Минск и Минский район |
1-2 рабочих дней |
до 5 дней |
||
|
Районные и областные города |
2-4 рабочих дня |
1-4 рабочих дня |
|
до 5 дней |
|
|
|
|
|
|
О доставке в страны СНГ уточняйте менеджеров магазина.
Кредит и рассрочка
Данное предложение действует для брендов: THORMA, KOBOK, CARBEL, PANADERO
В нашем магазине вы можете купить товар с помощью РРБ-Банка
12/24 (12 месяцев рассрочка, вторые 12 месяцев кредит)
- Рассрочка - на 12 месяцев под 0,001% годовых.
- Кредит - на 12 месяцев под 18,18% годовых
Подробные условия находятся по ссылке.
Карты рассрочки
Приобрести любой товар в нашем магазине можно следующими картами рассрочки:
- Карта покупок;
- Магнит;
- Smart;
- Карта Fun.
За получением развернутой информации обращайтесь в наш магазин!

